Auszeichnungen

Architekturpreis des Fachbereichs WiSe 2015/16

Die herausragende Masterthesis der Absolventin Anna Schork wurde mit dem Fachbereichspreis ausgezeichnet. Der Preis ist mit 1.000 Euro dotiert und wird in Form eines Reisestipendiums verliehen.

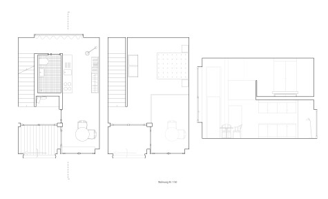
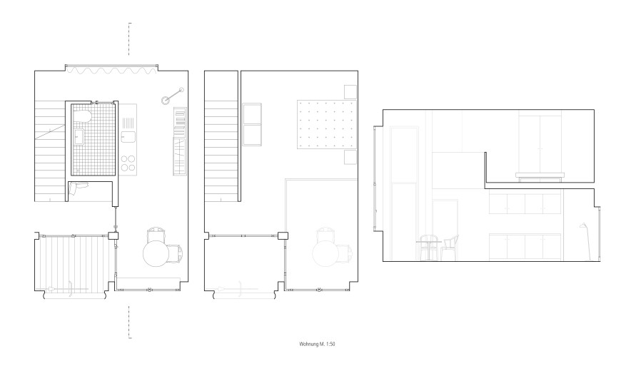
Die Arbeit ist im Rahmen der Masterthesis-Aufgabe „Hotel-Wohnen?“ des Fachgebiets Entwerfen und Wohnungsbau (Prof. Dr. Elli Mosayebi) im Wintersemester 2015/16 am Fachbereich Architektur der TU Darmstadt entstanden.

Bei der Aufgabenstellung „Hotel-Wohnen?“ ging es darum, für die aktuell hohe und spezifische Nachfrage nach temporärem Wohnraum für Ein- bis Zweipersonenhaushalte eine eigene Architektur zu entwickeln.

Diese alternative Wohnform basiert auf Kleinwohnungen, die mit einem gemeinschaftlich genutzten Dienstleistungsapparat ausgestattet sind. Sie bietet Platz für Individualität, Rückzug und Komfort. Gleichzeitig sorgt sie durch intelligente Auslagerung von gemeinschaftlich nutzbaren Einheiten für gute Aufenthaltsqualitäten.

Als Baufeld für die Aufgabe „Hotel-Wohnen?“ war der östliche Mercksplatz in Darmstadt ausgewählt.

Anna Schork, Masterthesis 2015/16, Hotel-Wohnen?
Anna Schork, Masterthesis 2015/16, Hotel-Wohnen?