MASTERTHESIS

WOHNMASCHINE

Sommer 2018

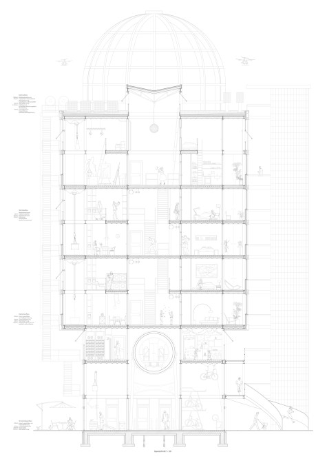
Masterthesis Wohnmaschine Mengmeng Zhang Sommersemester 18
Masterthesis Wohnmaschine Mengmeng Zhang Sommersemester 18
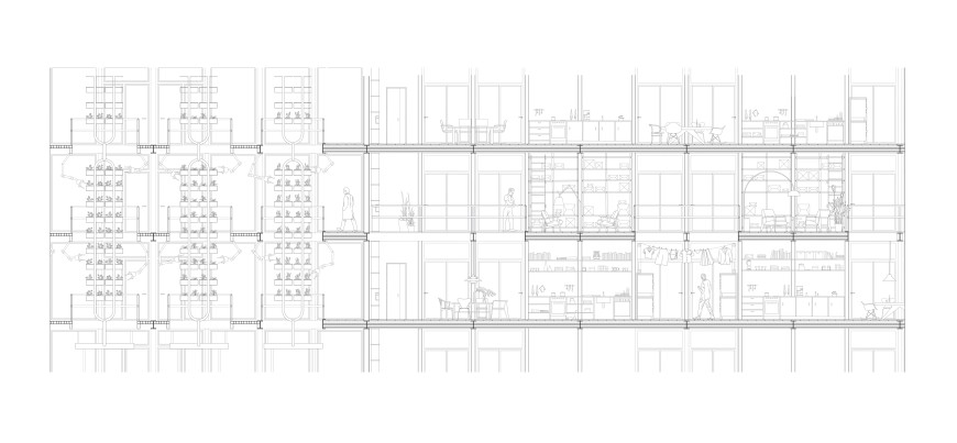
Nathalia Hélène Nehm Masterthesis Wohnmaschine Sommersemester 18
Nathalia Hélène Nehm Masterthesis Wohnmaschine Sommersemester 18
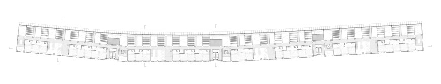
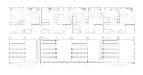
Alexandra Bradley Masterthesis Wohnmaschine Sommersemester 18
Alexandra Bradley Masterthesis Wohnmaschine Sommersemester 18