WOHNWERK MÜNCHEN

Winter 2019/20

Eine zukunftsweisende Architektur muss die Attraktivität urbanen Lebens erkennen und gezielt in moderne Wohnsituationen übertragen. Der Masterplan des Werksviertels in München umfasst neben einer breiten Umnutzung vorhandener Bestandsgebäude, einen Ausbau des ehemaligen Industrieviertels in einen attraktiven und belebten Stadtteil. Wie auch das Quartier, befinden sich die Anforderungen und Nutzerprofile im Wohnungsbau in einem stetigen Wandel. Neben Mischformen aus Wohnen und Arbeiten, erleben auch gemeinschaftlich geprägte Wohnkonzepte eine Renaissance. Im Entwurf für ein neues Wohnen kann es somit nicht mehr um ein Haus für ein bestimmten Benutzertypus respektive für eine bestimmte Wohnform gehen. Vielmehr liegt die Herausforderung darin, Grundrisse und Wohnungen zu entwerfen, die offen für verschiedene Lebensmodelle und Nutzergruppen sind.

Bild: Future City-Experiment and Utopia in Architecture 1956-2006, London, Alison and Peter Smithson aus The House of the Future, 1956.
Bild: Future City-Experiment and Utopia in Architecture 1956-2006, London, Alison and Peter Smithson aus The House of the Future, 1956.

Innenraum

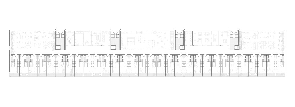
Grundriss

Schnitt

Innenraum

Grundriss

Schnitt

Innenraum

Grundriss

Schnitt

Innenraum

Grundriss

Schnitt