WOHNEN IN ZAGREB

Sommer 2013

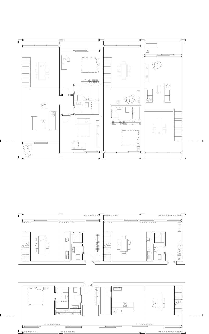
Rebecca Aldinger, Wohnen in Zagreb, Sommersemester 2013
Rebecca Aldinger, Wohnen in Zagreb, Sommersemester 2013
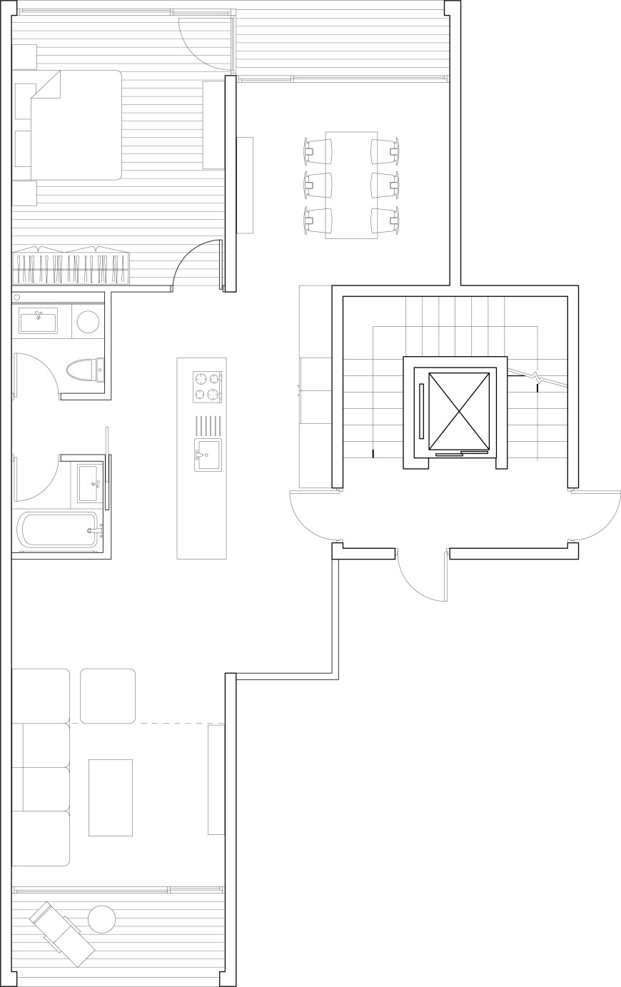
Rehemitula Batuer, Wohnen in Zagreb, Sommersemester 2013
Rehemitula Batuer, Wohnen in Zagreb, Sommersemester 2013
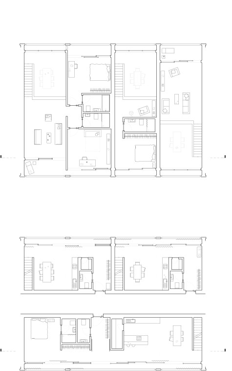
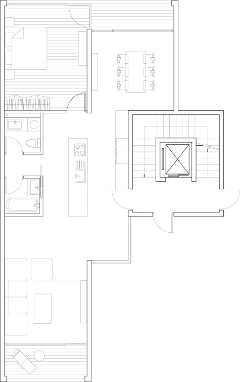
Joannis Nikoloudis, Wohnen in Zagreb, Sommersemester 2013
Joannis Nikoloudis, Wohnen in Zagreb, Sommersemester 2013