WOHNEN IN OSLO

Sommer 2014

«Wohnen in der Stadt» bildet in den kommenden vier Semestern den Schwerpunkt unserer Auseinandersetzung mit Architektur und Wohnungsbau. Dieser Fokus ist der Beobachtung geschuldet, dass Städte als Arbeits- und Lebensräume aus ökonomischen, ökologischen und nicht zuletzt kulturellen Gründen wieder an Attraktivität gewinnen und in den letzten Jahren einen Bevölkerungszuwachs erlebten. Um Erkenntnisse darüber zu erlangen, welche städtischen Wohnformen existieren und wie in europäischen Städten Wohnungsbau produziert wird, ist die Beschäftigung mit einzelnen Städten notwendig. Oslo ist dafür nach Brüssel, Zagreb und Köln unser viertes Fallbeispiel. Oslo scheint uns wegen seiner städtbaulichen Entwicklung sowie seiner außerordentlich reichen Baukultur besonders interessant. Im Semester werden wir

uns mit gebauten Beispielen Oslos auseinandersetzen und mittels unserer Entwürfe darüber spekulieren, in welche Richtung sich städtische Wohnformen entwickeln können. Diese Frage bleibt in den kommenden Semestern Gegenstand andauernder Auseinandersetzung und Argumentation. Die Entwurfsaufgabe besteht darin, ein mehrgeschossiges Wohnhaus mit einer öffentlichen Nutzung zu entwerfen. Das Gebäude soll Wohnungen unterschiedlicher Belegungsdichten von einer bis fünf Personen aufweisen. Die städtebauliche Setzung, die volumetrische Entwicklung, die Erschließungsfigur sowie die Anzahl der Wohnungen sind Teil der Aufgabenstellung und konzeptabhängig zu entwickeln. Einen besonderen Stellenwert nimmt die Arbeit an den Wohnungsgrundrissen ein.

Christina Chantzara, Wohnen in Oslo, Sommersemester 2014
Christina Chantzara, Wohnen in Oslo, Sommersemester 2014
Tobias Schafroth, Wohnen in Oslo, Sommersemester 2014
Tobias Schafroth, Wohnen in Oslo, Sommersemester 2014
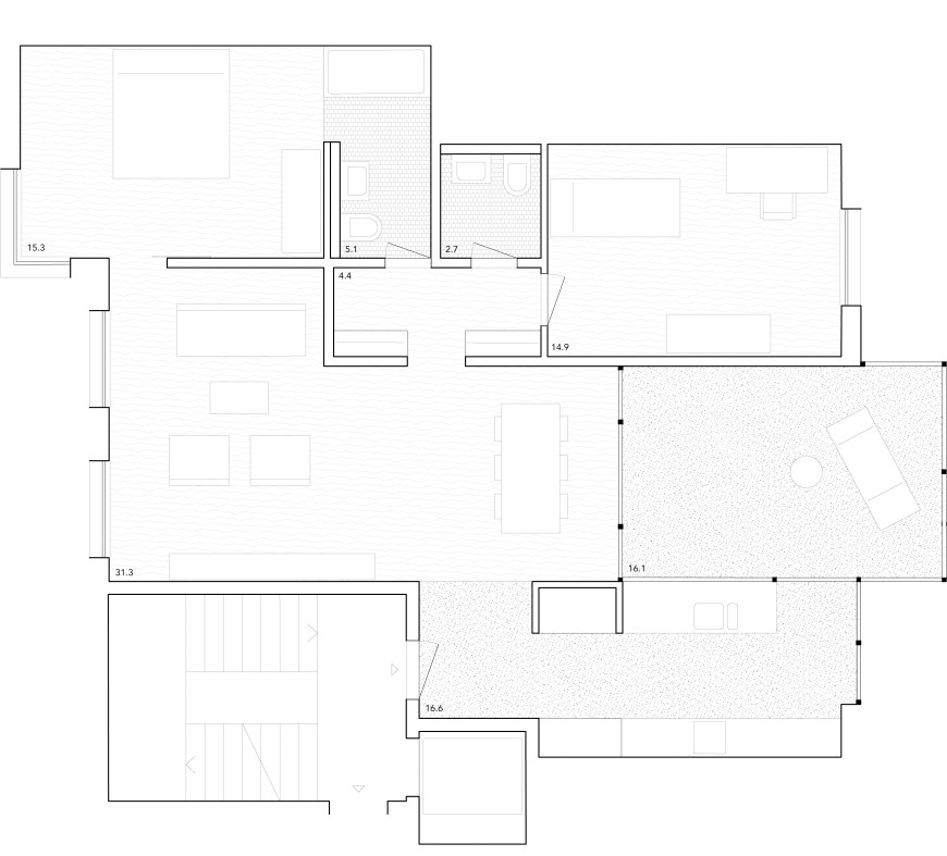
Anna Schork, Wohnen in Oslo, Sommersemester 2014
Anna Schork, Wohnen in Oslo, Sommersemester 2014
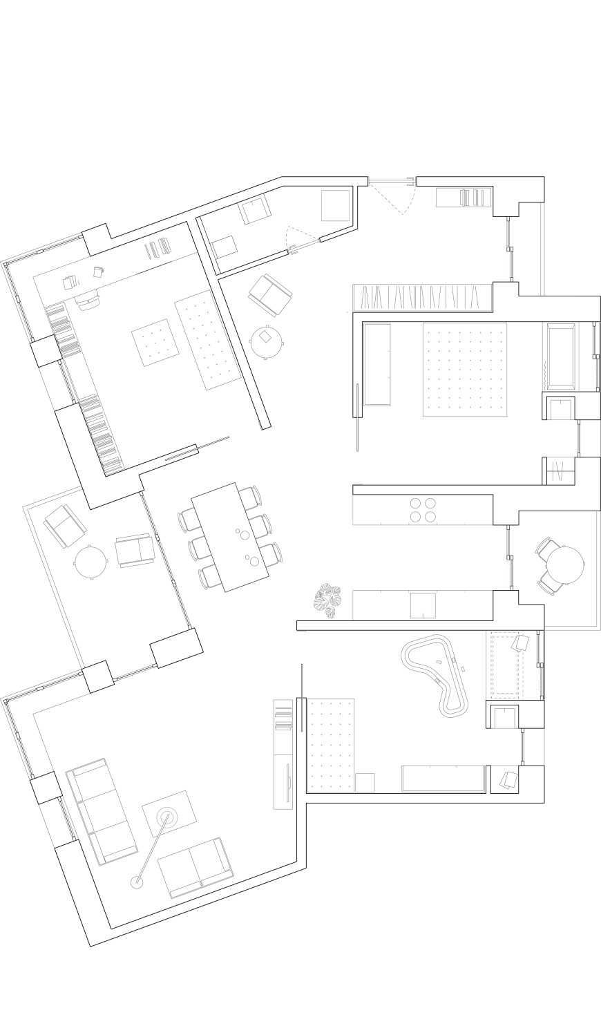
Moritz Winter, Wohnen in Oslo, Sommersemester 2014
Moritz Winter, Wohnen in Oslo, Sommersemester 2014