WOHNBLOCK BERLIN

Sommer 2024

Der Entwurf »WohnBlock Berlin« erprobt eine Neuprogrammierung einer widersprüchlichen Typologie: des Blockrands. Verborgen im Inneren lassen sich „gesetzlose“ Welten mit einem Nebeneinander von Wohnungen, Geschäften und Produktionsstätten entdecken.

In einer Beschäftigung mit und Weiterentwicklung dieser Typologie sollen Potentiale erkannt und verdichtet werden, um so Beiträge für ein verantwortungsvolles, soziales Wohnen der Zukunft zu liefern.

Außenraum

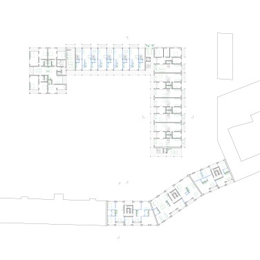
Grundriss

Schnitt

Innenraum

Außenraum

Grundriss

Schnitt

Innenraum

Außenraum

Grundriss

Schnitt

Innenraum

Außenraum

Grundriss

Schnitt

Innenraum

Außenraum

Grundriss

Schnitt

Innenraum