WOHNKOMPLEX MÜNCHEN

Winter 2023/24

Der Entwurf »WohnKomplex« sucht pionierhafte Strategien, wie ein Bestandsareal in München in Insellage durch das Hinzufügen von Wohnen aufgewertet und zu einem lebendigen Quartiert umgeformt werden kann, um eine neue Identität zu schaffen.

Im Rahmen des Entwurfs wird ein Exkursionsseminar »The New Frontier – Innovatives Wohnen in München« und ein semesterbegleitendes Seminar »Untyp(olog)isch – Prinzipien der Sonderlösung« angeboten.

Außenraum

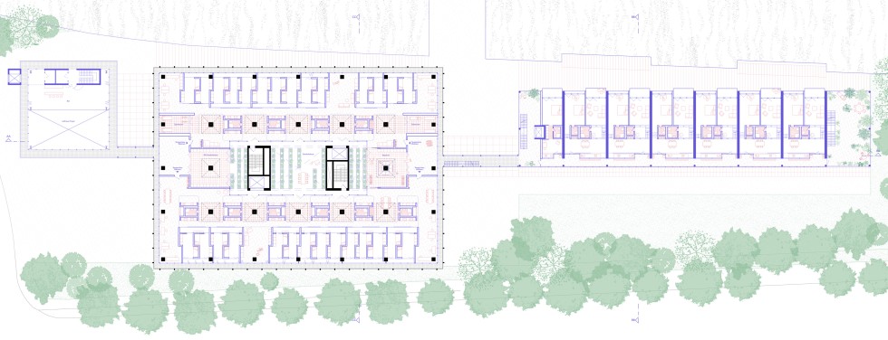
Grundriss Erdgeschoss mit Umgebung

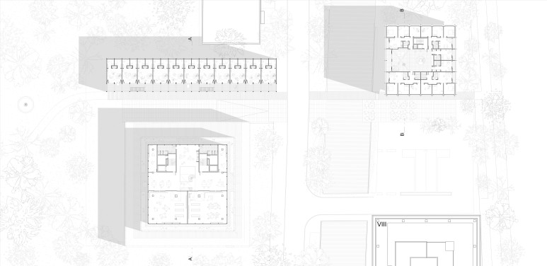
Grundriss 1. Regelgeschoss

Grundriss 2. Regelschosss

Längsschnitt

Innenraum

Außenraum

Grundriss Erdgeschoss mit Umgebung

Grundriss 1. Regelgeschoss

Grundriss 2. Regelgeschoss

Perspektivischer Querschnitt

Innenraum

Außenraum

Grundriss Erdgeschoss mit Umgebung

Grundriss 3. Obergeschoss

Grundriss 4. Obergeschoss

Axonometrischer Schnitt

Innenraum

Außenraum

Grundriss Erdgeschoss mit Umgebung

Grundriss 1. Obergeschoss

Grundriss 2. Obergeschoss

Perspektivischer Querschnitt

Innenraum

Außenraum

Grundriss Erdgeschoss mit Umgebung

Grundriss 1. Obergeschoss

Grundriss 2. Obergeschoss

Längsschnitt

Innenraum