WOHNART WIEN

Sommer 2022

Nachdem „Wohnen“ und „Arbeiten“ im Zug der modernen Funktionstrennung zu isolierten Wissenschaften entwickelt wurden, wollen wir in diesem Semester an den gegenseitigen Wechselwirkungen beim Zusammenfügen dieser Bereiche arbeiten. Die kreative Arbeit einerseits, die vielschichtigen Anforderungen an das zeitgenössische Wohnen andererseits, bilden das spannende Basismaterial dieser Untersuchung.

Es gibt viele unterschiedliche Bereiche für kreative Arbeit: Das Atelier des Künstlers, die Schreibstube des Dichters, das Labor des Wissenschaftlers, die Werkstatt des Handwerkers. Im historischen Kontext war die Besonderheit dieser Orte oft die unmittelbare oder mittelbare räumliche Verbindung der Wohn- und Lebenssituation der jeweiligen Akteur:innen. Diese Umgebung von Kreativität und ihr Einfluss auf die Architektur und das tägliche Leben der Bewohner:innen werden in unserem Fokus stehen.

Ort der Forschung ist ein zentral – innerstädtischer Ort in Wien dessen Heterogenität und Urbanität der offenen Fragestellung zusätzliche Impulse verleiht.

Innenraum

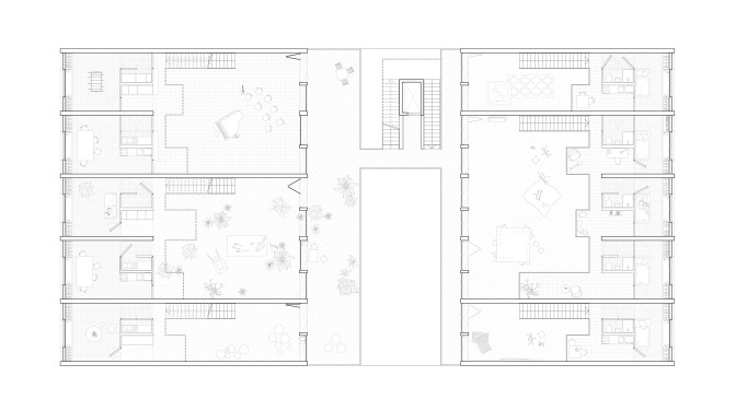
Grundriss

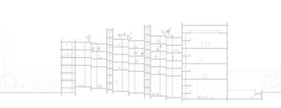
Schnitt

Innenraum

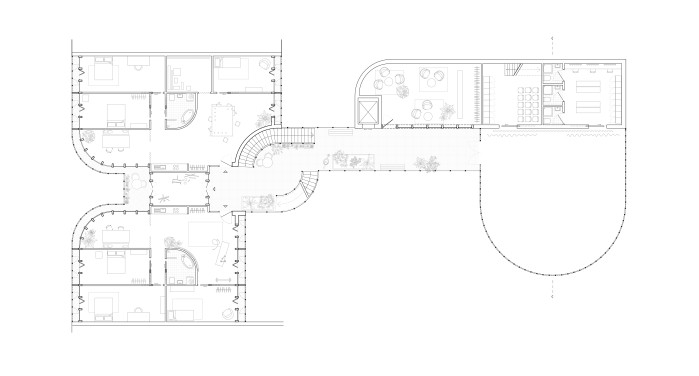
Grundriss

Schnitt

Innenraum

Grundriss

Schnitt

Innenraum

Grundriss

Schnitt

Innenraum

Grundriss

Schnitt

Innenraum

Grundriss

Schnitt

Innenraum

Grundriss

Schnitt