WOHNLABOR MÜNCHEN

Winter 2021/22

Im Entwurf für das «WohnLabor» geht es nicht mehr darum ein Haus für einen bestimmten Benutzertypus respektive für eine bestimmte Wohnform zu entwerfen. Vielmehr liegt die Herausforderung darin, Strukturen und Räume zu entwickeln, die offen für verschiedene Lebensmodelle und Wohnformen sind.

Das bewußte Fehlen scharfer Benutzerprofile wird als Chance begriffen, sich von konventionellen Vorstellungen zu lösen und Strategien für die heterogen – komplexe Zukunft des Wohnens zu finden. Der architektonische Raum und seine Materialisierung rücken in den Fokus unseres vorwärtsgerichteten Wohnungsbauentwurfs. Über experimentelle Versuche werden wir uns der Erforschung alternativer und unerwarteter Raumfigurationen des Wohnens annähern.

Das freie Baufeld zwischen dem neuen Volkstheater, der experimentellen „Bahnwärter Thiel – Welt“ und dem Münchner Großmarkt bietet den urban – programmatischen Rahmen für den Entwurf.

Innenraum

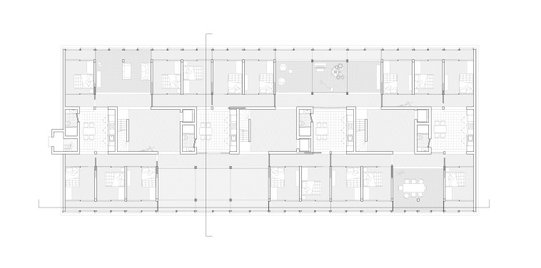
Grundriss

Schnitt

Innenraum

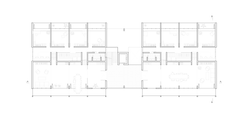
Grundriss

Schnitt

Innenraum

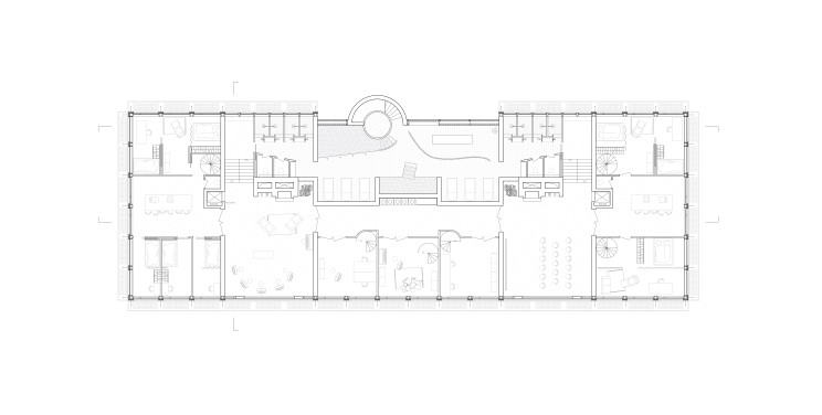
Grundriss

Schnitt

Innenraum

Grundriss

Schnitt

Innenraum

Grundriss

Schnitt

Innenraum

Grundriss

Schnitt