WOHNLANDSCHAFT BERLIN

Sommer 2021

Im Entwurf für die „Wohnlandschaft Berlin“ wollen wir erforschen wie die vegetativen und sozialen Potentiale des Urban Gardenings und der benachbarten sportbezogenen Freiraumnutzungen mit einer Wohnraumschaffung in einen neuen, zukunftsfähigen Stadtbaustein übersetzt werden können. Es geht darum die tatsächlichen Qualitäten der derzeitigen Nutzungen genau zu untersuchen, freizulegen und anschließend in eine organische Verbindung mit der geplanten Wohnnutzung zu bringen und in ihrer Gesamtheit einen zukunftsfähigen, abstrahierbaren Bautypus erzeugen.

Wie unterscheidet sich ein mehrschichtiges Haus der „WohnLandschaft“ von einem eindimensional genutzten Wohnhaus? Welche zusätzlichen Räume entstehen und wie bedingen sie einander? Was unterscheidet das Gebäude der „WohnLandschaft“

vom „Greenwashing“ der derzeit in der Investorenweltangesagten oberflächlichen Fassadenbegrünungswelle? Wie stehen die allgemeinen Nutzungen und Außenräume in Beziehung zu den privaten, intimen Bereichen der Wohnungen? Wie gehen wir mit den Erschließungen um? Gibt es eine dreidimensional – öffentliche Passage durch das Gebäude? Liegen die Wohnungen an einer Art innerer Straße und wie schaffen wir dann Intimität und Privatheit für die Bewohner? Welche positiven sozialen Aspekte ergeben sich aus der hybriden Form: Gemeinsam kochen? Kinderbetreung? Open Air Schule? Kurze Wege? Ist die neue „WohnLandschaft“ eine urbanisierte Form der Gartenstadt? Mit welchen Materialien können wir in der Konstruktion des Hauses eine Ortsbezogenheit und Nachhaltigkeit schaffen? Ist Dauerhaftigkeit oder Recycling die Lösung? Wie kommen die Erde, die Pflanzen, die Geräte in das Haus, auf das Dach?

Außenraum

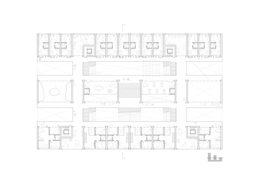
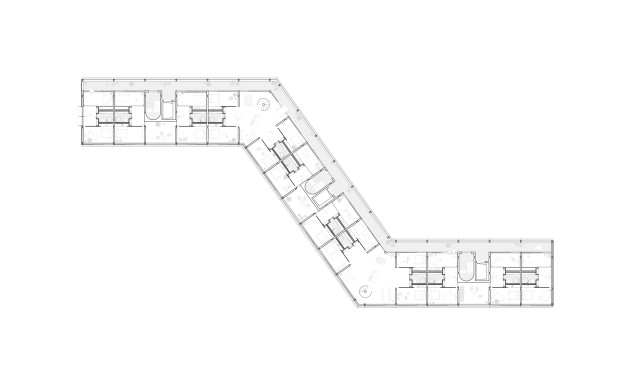
Grundriss

Schnitt

Außenraum

Grundriss

Schnitt

Außenraum

Grundriss

Schnitt

Außenraum

Grundriss

Schnitt

Außenraum

Grundriss

Schnitt

Außenraum

Grundriss

Schnitt

Außenraum

Grundriss

Schnitt